Spring 2021
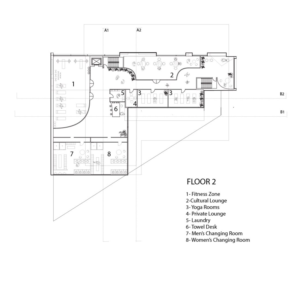
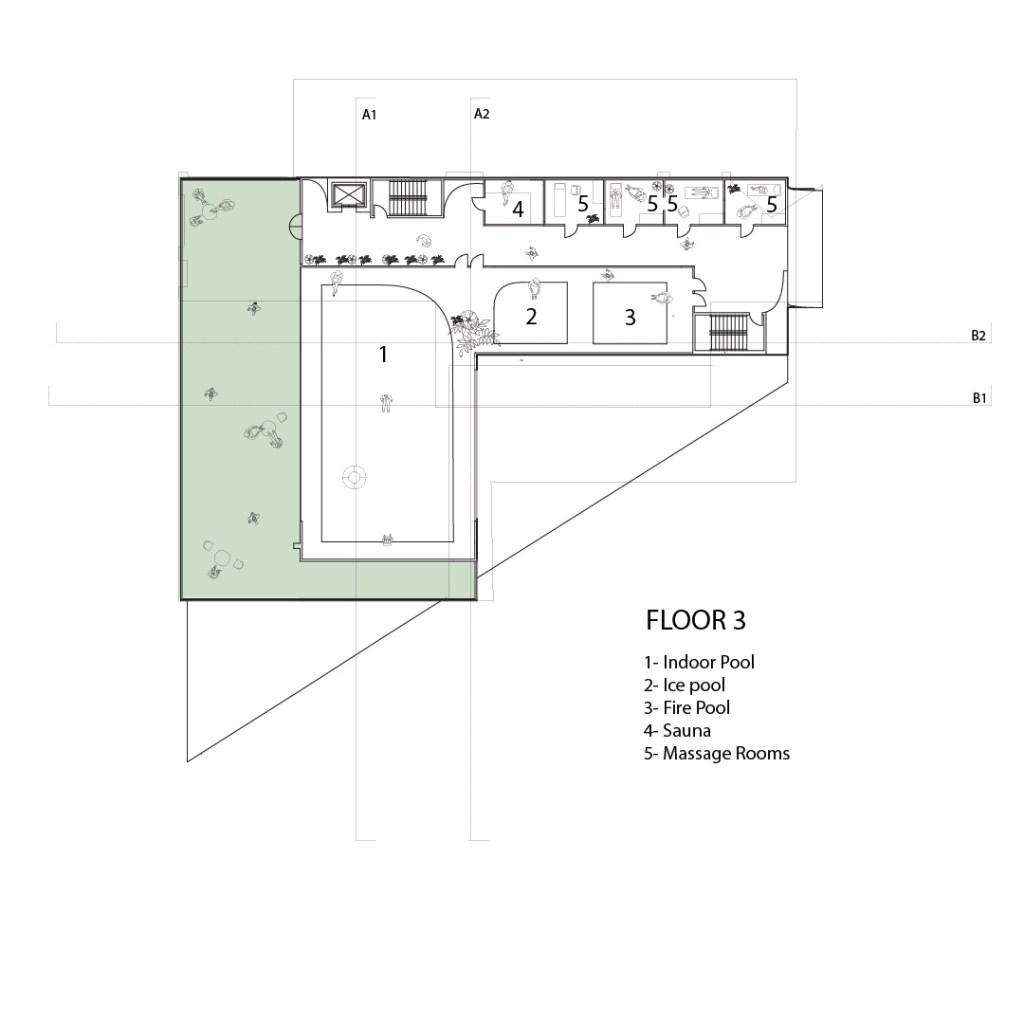
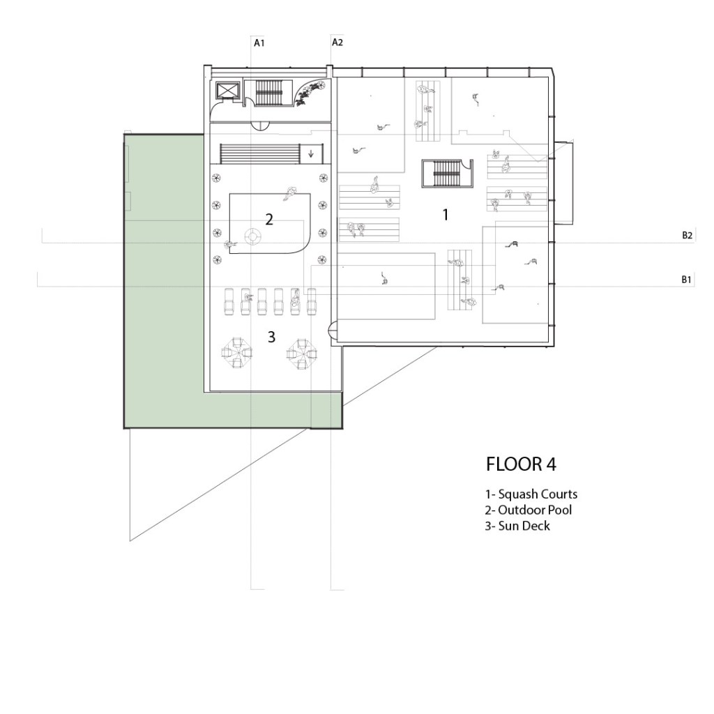
This project was a design for a cultural center in Treemont, Ohio. In this project I decided to explore the idea of environmentalism through the addition of indoor and outdoor green spaces that create a therapeutic building. Vines hanging from cantilever pieces create a screen-like condition to create outdoor places for people to congregate or spend some time alone. The second floor includes another green space to congregate and look out over the surrounding neighborhoods. The interior focuses on the addition of greenery, large windows and high ceilings.These outdoor and indoor conditions can create a therapeutic space, a sense of community and interest in nature. The use of nature in this building compliments the environment and neighborhood around the site.

















